CHANGEMENT DE LA MOTORISATION D’ORIGINE D’UNE MONTURE TYPE HEQ5 PAR UN SYSTEME POULIES/COURROIES (téléchargement en bas de page)
Introduction :
Après démontage de mon Heq5, puis graissage et changement des roulements sur les axes AD et DEC, je voulais augmenter la qualité de la monture. J’ai donc pensé à remplacer les motoréducteurs.
Après quelques recherches, je suis tombé sur le site Astrimage proposant un montage (PicAstro) à réaliser soi-même pour commander des moteurs pas à pas et installer un entraînement par poulies/courroies.
Voici donc, par l’image le changement de la motorisation d’origine par le nouveau système.
Nb : toutes les cotes sont données pour le montage de moteurs type ITC-CNC1
1 – Démontage des moteurs :
- Enlever la plaque cachant les moteurs :
Pour cela à l’aide d’un tournevis cruciforme, enlever les 6 vis noires maintenant le cache en plastique.
- Enlever les moteurs :
- Enlever le cache noir, protégeant le viseur polaire et l’électronique de commande (flèches rouges), deux vis de chaque coté du capot.
- Dévisser les quatre vis fixant les platines moteurs (flèches).
- Repérer moteurs et engrenages associés dans l’éventualité d’un futur remontage…
- Repérer puis enlever les connecteurs moteur et alimentation. (Pour repérer efficacement les connecteurs, il est possible d’associer un nombre de traits au marqueur sur chaque connecteur)
- Retirer les moteurs puis dévisser la platine électronique.
La monture ne possède désormais plus aucun élément de motorisation.
2 – Installation des poulies sur la monture :
• Il faut ensuite installer les poulies (48 dents) sur chaque axe.
- Les poulies auront été préalablement alésées à 9mm.
- Il est possible de monter les poulies, moyeux tournés vers le bas ou vers le haut.
- En installant les poulies, moyeux tournés vers le bas (sens contraire de la photo ci-dessous), il sera plus facile de les serrer sur les axes.
- Une fois les poulies installées, on pourra préparer les entretoises qui serviront à éloigner la plaque supportant les moteurs du bâti de la monture.
- Les filetages sur la monture sont percés à 3mm. Avant de couper à la bonne longueur les entretoises, je vous conseille d’acheter une tige filetée de 3mm et 12 écrous de 3mm. Ensuite, il faudra couper 6 morceaux de tige filetée à 20mm puis les visser dans le bâti. En utilisant un écrou sur chaque bout de tige, l’on pourra régler facilement la hauteur de la plaque support de moteur, puis après, remplacer les bouts de tiges par des entretoises de la hauteur exacte.
- La préparation de la monture est désormais terminée. Il restera tout de même la connexion du Pic-Astro à réaliser. Mais ce montage dépend du type de prise choisie (personnellement une DB15). La ou les prises seront installée(s) sur le bâti ou plus facilement sur la plaque avant plastique de la monture…
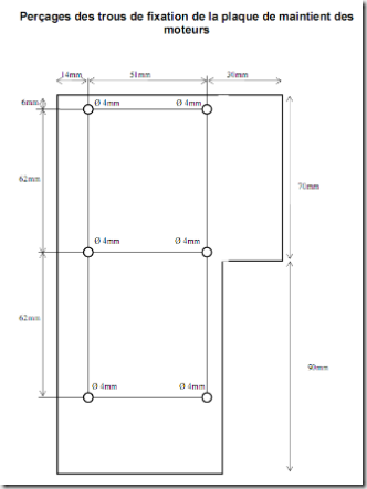
3- Préparation de la plaque supportant les moteurs
Il faut découper 3 plaques d’aluminium. Une épaisseur de 2mm est suffisante pour assurer une très bonne rigidité. Il faut percer d’abord tous les trous des plaques, puis seulement ensuite les découper (scie sauteuse)
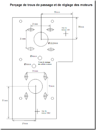
Pour effectuer les trous de 22,5mm, on utilisera:
- soit une mèche en effectuant des petits trous sur la périphérie du cercle
- soit des trépans ou alors mieux un emporte pièce électrique de 22,5mm.
Ce diamètre de 22,5mm est celui utilisé en standard pour percer les trous des boutons et voyant sur les armoires électriques.
Pour les lumières de réglage de la tension des courroies, utiliser un foret de 4 poutr percer 2 trous aux extrémités de chaque lumière, puis fraiser entre les deux.
NB: Les cotes données pour des moteurs ITC, 200 pas/tours, type CNC-1.
4 – Schémas de perçage des plaques de fixation des moteurs
- Les moteurs possèdent un bosselage autour de l’axe de 22mm. Les petites plaques serviront à surélever les moteurs de manière à garder une surface de contact moteur/plaque de soutien le plus large possible.

- Les moteurs sont ensuite fixés sur la plaque de soutien par 4 vis M3 de longueur 10mm. Les vis auront si possible une tête six pans de manière à pouvoir facilement les serrer lorsque la plaque de soutien sera en place sur la monture, ces vis serviront à régler la tension des courroies moteurs.

- Sur l’image ci-dessous, les moteurs sont fixés au travers des plaques de surélévation.
- Deux passes fil serviront à ne pas blesser les fils d’alimentation des moteurs.

La plaque terminée et vissée sur le bâti.

Détail des poulies mises en place et tendues

- Pour effectuer la tension de courroies, il faut desserrer un petit peu les 4 vis de fixation de chaque moteur. Ensuite on règle la tension des courroies en bougeant le moteur. Un fois le réglage trouvé, on démontera doucement la plaque du bâti puis on serrera définitivement les vis des moteurs.
- Il ne restera plus qu’à remonter la plaque en installant bien les courroies dans les gorges des petites poulies (s’aider d’un fil de fer recourbé ou autre…).
5 – Annexe :
Liste du matériel nécessaire à la réalisation :
- 2 moteur pas à pas, 200 pas/tour, 12V, ITC CNC-1,
- 1 tige filetée de 3mm.
- 6 vis, tête 6 pans, Ø 3mm de longueur 10mm.
- Ecrous, rondelles de 3mm.
- 2 passe câbles.
- Une plaque d’aluminium de 2mm d’épaisseur, format A4 ou moins.
- 2 poulies, 48 dents, alésées à 9mm, réf. HPC : 48t2.5-8.
- 2 poulies, 12 dents, alésées à 5mm, ref HPC : 48t2.5-8.
- 2 courroies, longueur160mm, ref HPC : T 2,5/1 60.
- 6 entretoises de filetage intérieur 3mm, longueur à voir suivant le montage, il est possible de les remplacer par du tube aluminium évidé à 3mm (tous magasins de bricolage).
Outillage nécessaire à la réalisation :
- Une perceuse à colonne.
- Un emporte pièce ou autre pour faire des trous de Ø 22.5mm.
- Une mini perceuse avec des disques à tronçonner pour couper la tige filetée sans abîmer le filetage et raccourcir les entretoises.
- Des forêts de différents diamètres.
- Un jeu de clés Allen.
Pour aller plus loin :
Références des roulements d’une HEQ5 :
- 2 roulements coniques: SKF 30205 J2/Q (axes AD et DEC).
- 6 roulements droits étanches SKF 6006-2RS1 (axes AD et DEC).
- 4 roulements miniatures étanches SKF 689-2Z (vis sans fins AD et DEC).
Les bonnes adresses :
Commande de poulies et courroies : Engrenages HPC sarl
58, chemin de la Bruyère
69570 DARDILLY, France
Tél : 04 37 496 496
Email : cial@hpceurope.com
Sites Internet :
http://www.astrimage.org/ (présentation de la commande par PicAstro).
http://astrocoolpix.net/www/index.php (forum sur PicAstro).
Tutorial écrit par ksyrium d’astrocoolpix
Télécharger le tutorial Adapter Pic-Astro sur une HEQ5 - pdf (3 téléchargements )
