• ASTROLABO devient dédié au CELESTRON Origin.

    Clicky

  • Pour télécharger, connectez-vous avec: id: download. mdp: download

Réaliser une monture équatoriale à fourche pour un Newton de 250mm

Un tutorial de Orion de Astrocoolpix

PREAMBULE

Pourquoi se lancer dans une telle aventure ?

C’est très simple : pour le plaisir de fabriquer de ses mains et pour maîtriser son budget « astro ».

Voici quelques années je me suis offert un ETX90, modèle qui convenait bien à mes contraintes du moment (encombrement réduit, GoTo …) Cela m’a permis de faire mes premières armes en astro et de découvrir la photo via webcam.

Depuis quelques temps je bavais d’envie devant les 10 pouces GoTo, Gps et autres instruments tip-top. Mais le prix …. Ahhh le prix !

Entre-temps nous avons déménagés et l’environnement et désormais mieux approprié : la campagne, d’avantage de place, un peu de terrain, moins de pollution lumineuse … et revoilà mon imagination qui turbine !

Après des heures passées sur le net a rassembler des idées, c’est décidé : j’investis dans un newton (dobson) et je lui fabrique une monture équatoriale motorisée et PicAstrotisée et comme le tout sera assez encombrant, je compléterai avec la construction d’un observatoire au fond du jardin ! voilà, y a plus ka ! !

CHAPITRE 1 – LA MONTURE

L’ensemble ci-dessous est largement inspiré des réalisations trouvées sur le net.

Le tube optique sera épargné de toute modification en étant installé dans un berceau, qui lui même sera positionné entre les deux bras de la fourche.

Les axes de DEC et AD seront équipés de paliers à roulements auto alignants.

La motorisation sera assurée par roue et vis sans fin + poulies – courroies crantés et moteur pas à pas (inspiration AstroImage).

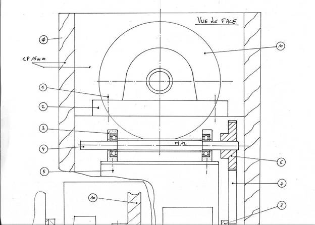
LA FOURCHE

Elle est en contre plaqué extérieure de 15mm, collé – vissé. L’écartement intérieur entre les deux branches est de 40cm pour 57 cm de hauteur et 19 de largeur. A noter sur la partie supérieure de chaque branche la présence de deux tiges filetées prises en sandwich dans deux épaisseurs de CP : elles serviront à la fixation des paliers de DEC. (paliers auto – alignants commandés chez HPC en même temps que les poulies et courroies crantées ).


LE BERCEAU

Egalement en CP de 15mm collé – vissé. Deux ½ arbres seront fixés de part et d’autre, ils s’ajusteront dans les paliers et permettront la rotation en DEC. A noter que le dessus du berceau dispose d’une grande surface plane qui recevra quelques accessoires tel que lunette de suivi, APN …

LA MECANIQUE

Du côté motorisation, tout repose sur une roue et vis sans fin de construction perso : la vis est une tige filetée de 12 et la roue sera taillée par mes soins dans une pièce d’alu préalablement ébauchée sur un tour.

J ‘ai réalisée un prototype de roue avec succès, encore une idée trouvée sur le net (voir photos)…

Les paliers et roulements utilisés sont de chez Conrad (modélisme)

Voici les plans de la motorisation en DEC et AD ce qui donnera un aperçu du travail qui reste a faire …

Voilà l’état d’avancement actuel de ce projet. La prochaine étape est l’usinage des pièces mécaniques : ½ axes de DEC, axe AD, paliers de fixation AD, roues dentées. Cela demandera quelques semaines… a suivre au chapitre 2.

Télécharger au format pdf Réaliser une monture équatoriale à  fourche pour un Newton de 250mm (429 téléchargements )

Article écrit par Orion sur Astrocoolpix

Un commentaire :

  1. bonjour pouvez vous me donner plus de details sur la realisation de la roue dentée ou bien lien utile,,,grand merci

Laisser un commentaire